СЕЛЬСКАЯ ИПОТЕКА!!
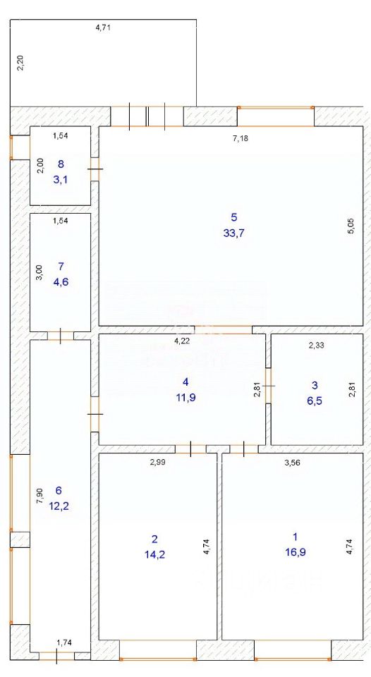
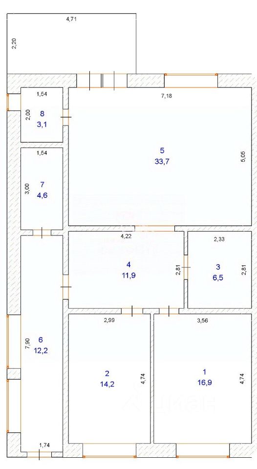
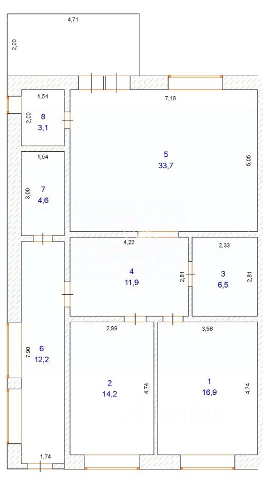
В продаже Таунхаусы ( двухквартирные) п Ивановка , улица Набережная
Просторные и современна планировка позволит грамотно разместиться не занимая пространство в комнатах.
Дом построен из керамзитоблока ( 40 см), фасад кирпич)
Стены идеально выравнены. Проводка выполнена Гост кабелем, в каждой комнате выпуски под выключатели, освещение и розетки.
Выполнена механизированная стяжка пола ( полы ровные и готовы под финишные покрытия).
Установлены качественные окна, дверь входная.
Кто мечтал о своем доме этот вариант для Вас.
Продажа от физ. лица
Арт. 66127528











