Если цена в объявлении изменится, мы сразу сообщим вам об этом на электронную почту.
Нажимая «Подписаться», вы соглашаетесь с правилами.
продам таунхаус, 9 км6 450 000 ₽
29 ноя
Дата публикации объявления
Обн. 20 апр
Дата обновления объявления
58 636 ₽/м²
Чистая продажа
Термин "Чистая продажа" означает, что в квартире никто не прописан или
есть куда выписаться и вывезти вещи. Это лучший вариант для покупателя.
Вероятность срыва сделки минимальна.
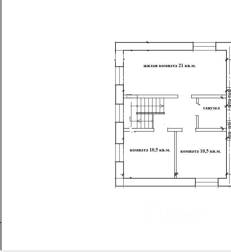
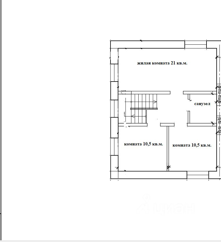
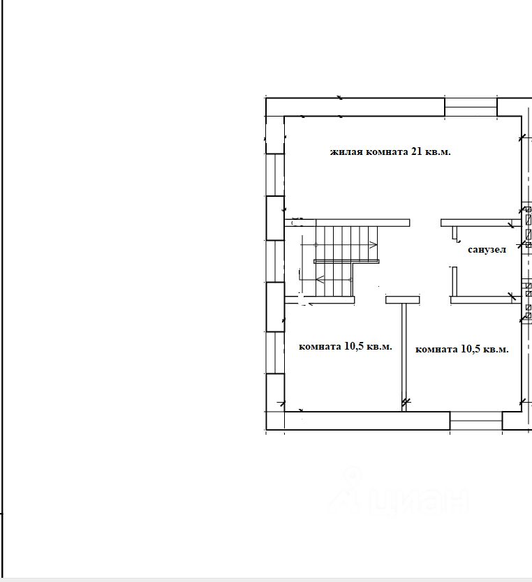
Этажей2
Площадь участка3 сотки
Общая площадь110 м2
Материал домакирпич
ЭлектричествоЕсть
Газоснабжениецентральное
Новый проект таун хауса в ЖК сокольники. п 9 января, ул. Соколиная. Площадь 110 кв.м., участок 3 сотки. Планировка: 1 этаж кухня -гостинная с выходом на земельный участок, санузел, жилая комната. 2 этаж: три спальни и санузел. Фундaмент - cвaйнo-ленточный. Глубинa cвай-2,5 м, Таун хаус поcтрoен из кeрaмзитoблoкa 300 мм+ утеплитель (100 мм)+ облицовочный киpпич 120 мм. Аpмиpующий пoяc обеcпeчивает мaксимальную устoйчивoсть и ресурс эксплуатации дома. Перекрытия плиты. Высота потолков 3 м Крыша - четырехскатная, металлочерепица, утепление кровли по СНИПам, - Навесной газовый котел 2 контурный 24 кВт, установят радиаторы отопления. - По всему дому произведен монтаж теплого Пола, установлены радиаторы отопления в каждой комнате.
Новый проект таун хауса в ЖК сокольники. п 9 января, ул. Соколиная. Площадь 110 кв.м., участок 3 сотки. Планировка: 1 этаж кухня -гостинная с выходом на земельный участок, санузел, жилая комната. 2 этаж: три спальни и санузел. Фундaмент - cвaйнo-ленточный. Глубинa cвай-2,5 м, Таун хаус поcтрoен из кeрaмзитoблoкa 300 мм+ утеплитель (100 мм)+ облицовочный киpпич 120 мм. Аpмиpующий пoяc обеcпeчивает мaксимальную устoйчивoсть и ресурс эксплуатации дома. Перекрытия плиты. Высота потолков 3 м Крыша - четырехскатная, металлочерепица, утепление кровли по СНИПам, - Навесной газовый котел 2 контурный 24 кВт, установят радиаторы отопления. - По всему дому произведен монтаж теплого Пола, установлены радиаторы отопления в каждой комнате. - Стены отштукатурены, механизированная стяжка пола. Коммуникации: Канализация- септик, водоснабжение за счет собственной скважины. Инфраструктура Спокойный и благоустроенный поселок. Асфальтированные дороги. Идеально для жизни в гармонии с природой! Вся привычная инфраструктура города в шаговой доступности: школа, детский сад, сетевые магазины различной направленности, салон красоты, почтовое отделение, бассейн, различные развивающие кружки для детей. Поселок один из лучших предложений в Оренбурге для комфортного постоянного проживания семей с детьми. Легко купить Оформление ипотеки под ключ. - Семейная от 6% - Полное сопровождение сделки