Дом, Талалихина, 17 Показать на карте
Дзержинский район
Оренбург
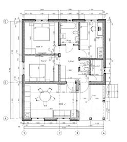
Продается просторный уютный дом кирпичный дом в черте города, идеально подойдёт для семьи, которая ценит комфорт и близость к городской инфраструктуре.Дом находится по адресу: г. Оренбург, ул. Талалихина, д. 17 (микрорайон ''Бёрды''). В шаговой доступности школа, детский сад, магазины и остановки общественного транспорта, регулярно ходят автобусы. Для автомобилистов - удобный выезд, хорошая отремонтированная дорога. Дом угловой, возможность заезда на участок с двух сторон. В шаговой доступности лес и река Сакмара. Участок расположен на возвышенности, известные события недавнего прошлого с разливом рек не коснулись ни дома, ни его транспортной доступности.Общая площадь дома 214 м², двухэтажный, материал стен кирпич. Участок 9,18 соток, огорожен забором по всему периметру. В доме есть прохладный сухой погреб. Планировка первого этажа прихожая, просторная гостиная, кабинет, столовая, кухня, санузел. Второй этаж три спальни.На участок и в дом подведен газ, установлен газовый котел, центральное газовое отопление. Водоснабжение центральное, от городского водоканала.Хозяйственная пристройка в задней части дома требует косметического ремонтаУчасток двухуровневый, с перепадом по высоте три метра. На участке есть недостроенный гараж, территория участка использовалась для приусадебного хозяйства (грядки, парник, виноград и т. д.). Двое отдельных ворот для заезда автомобиля с разных сторон участкаДом и участок оформлены в собственность, все документы готовы к продаже. Один взрослый собственник, без долгов и обременений. Продается в связи с переездом загород.Просмотр просьба согласовать заранее по телефону, желательно на выходные дни. Обоснованный торг возможен по результатам осмотра дома/участка.Риэлторам и посредникам просьба не беспокоить.
214 м2
2 этажа
Кирпич
- Показать контакты
- Добавить в избранное
214 м2
2 этажа
Кирпич
9 500 000
44 393 /м2
